AgStudio

The AgStudio is a building dedicated to making art and growing food. The owner, an artist and avid gardener, wanted a space separate from her and her husband’s home located on the same rural site near Blue Mounds, Wisconsin. This project is being designed as a high-performance, all-electric, net-zero building using a combination of passive house principles and a ground-mounted solar array.

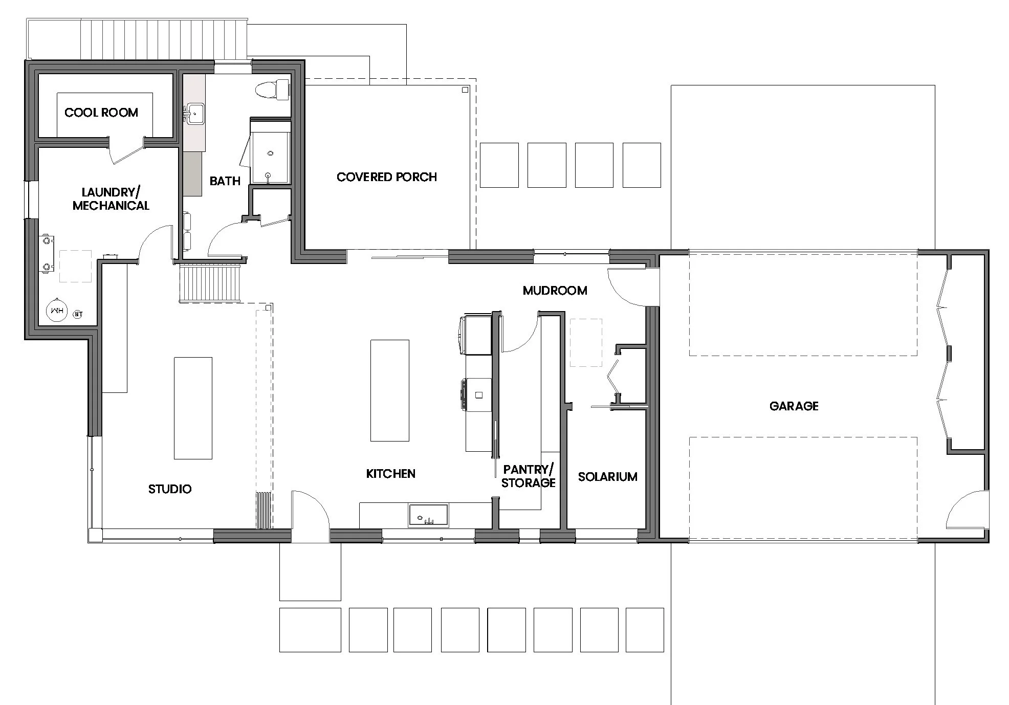
First Floor

The building is composed of two simple building forms clad in contrasting materials, creating a simple, modern palette. After exploring several options (below) for the massing of the main volume, the client ultimately chose the singular sloping roof plane which will allow for easy collect rainwater for gardening and to create a soaring open space on the interior. The design also takes advantage of panoramic views, including a notable view of Blue Mounds State Park.

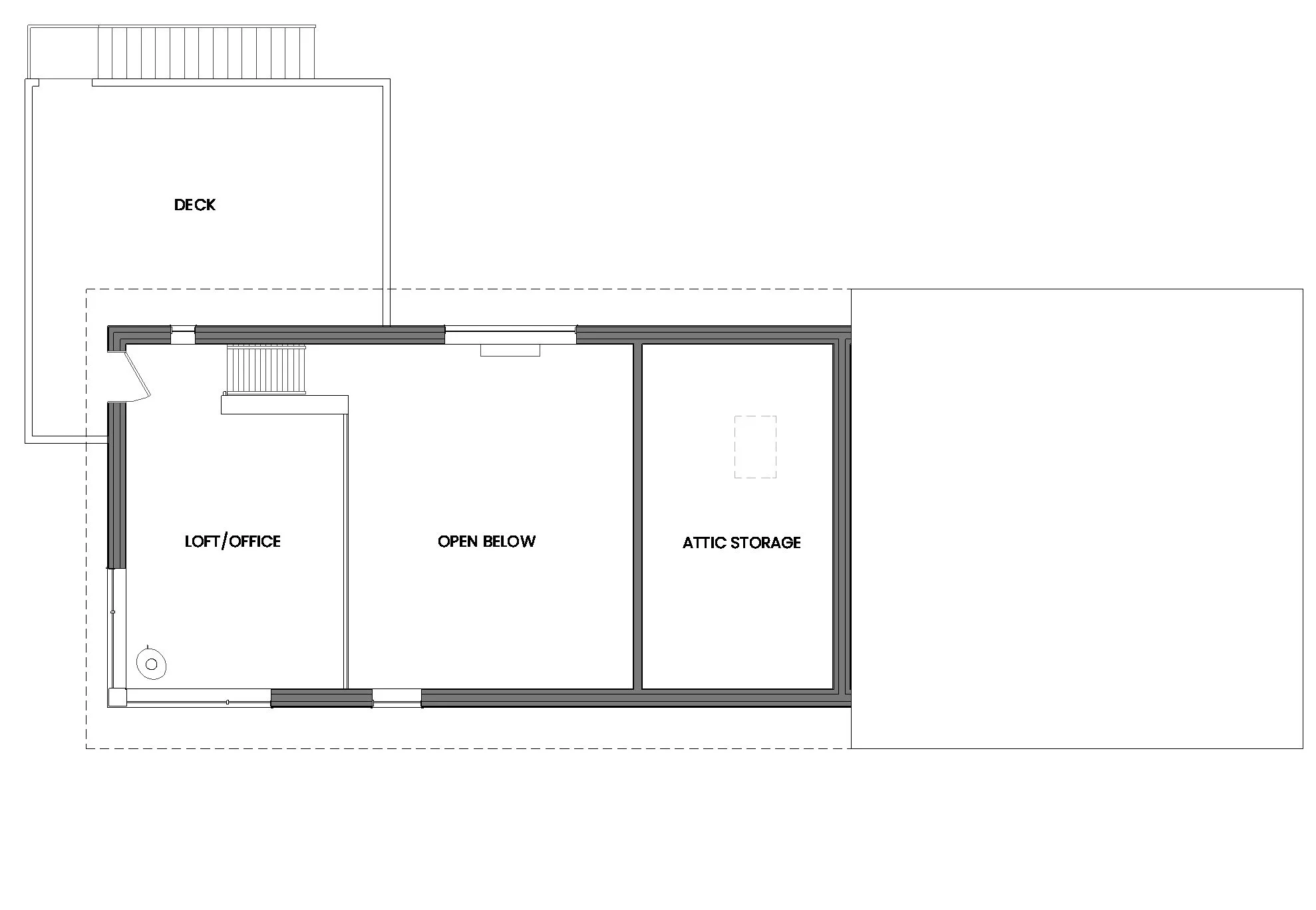
When complete, the AgStudio will contain an art studio, a kitchen for processing food, a solarium for seed starts, a cool room for food storage, a loft with an office and lounge area leading to a roof top deck, a bathroom, a garage, a mudroom and a ton of storage.

Second Floor